top of page
judith babcock interior design portfolio
interior design | chrysalis centre for experimental media + performing arts

senior
project concept: expansion + compression
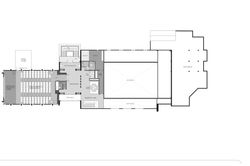
Bringing theatre to the people and people to the theatre, the Chrysalis Centre is a 44,000 sq.ft. community hub in Vancouver's Mt. Pleasant neighbourhood, providing permanent offices for five mid-size theatre companies and offering rentable hot desks for visiting companies. FLOOR PLANS
(Click on individual images for more details.)
![]() | ![]() | ![]() | ![]() |
|---|
bottom of page



